1/40
Description
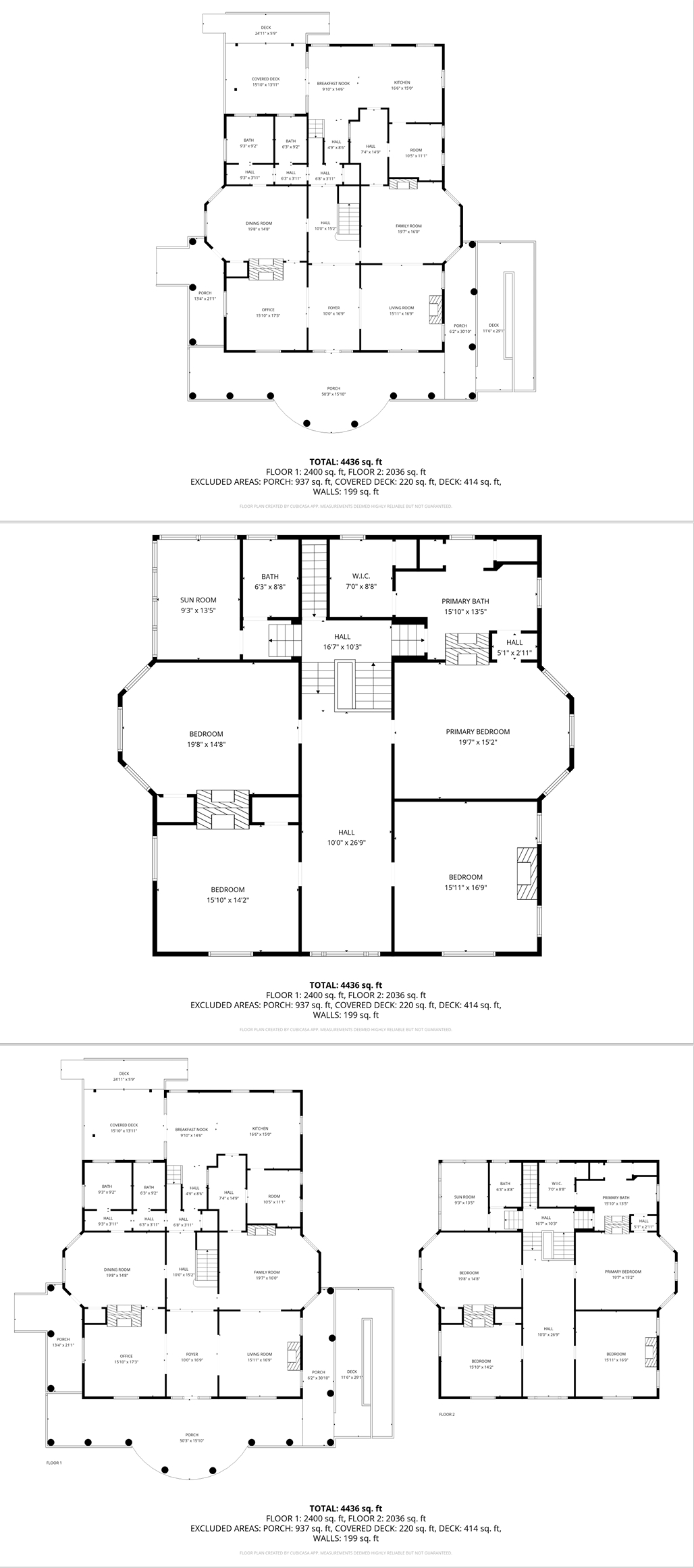
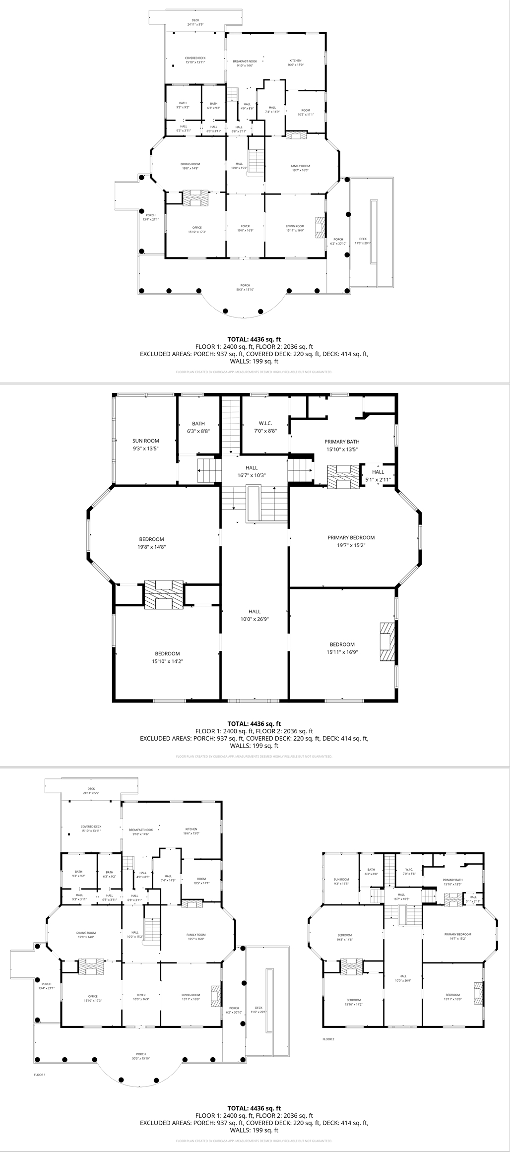
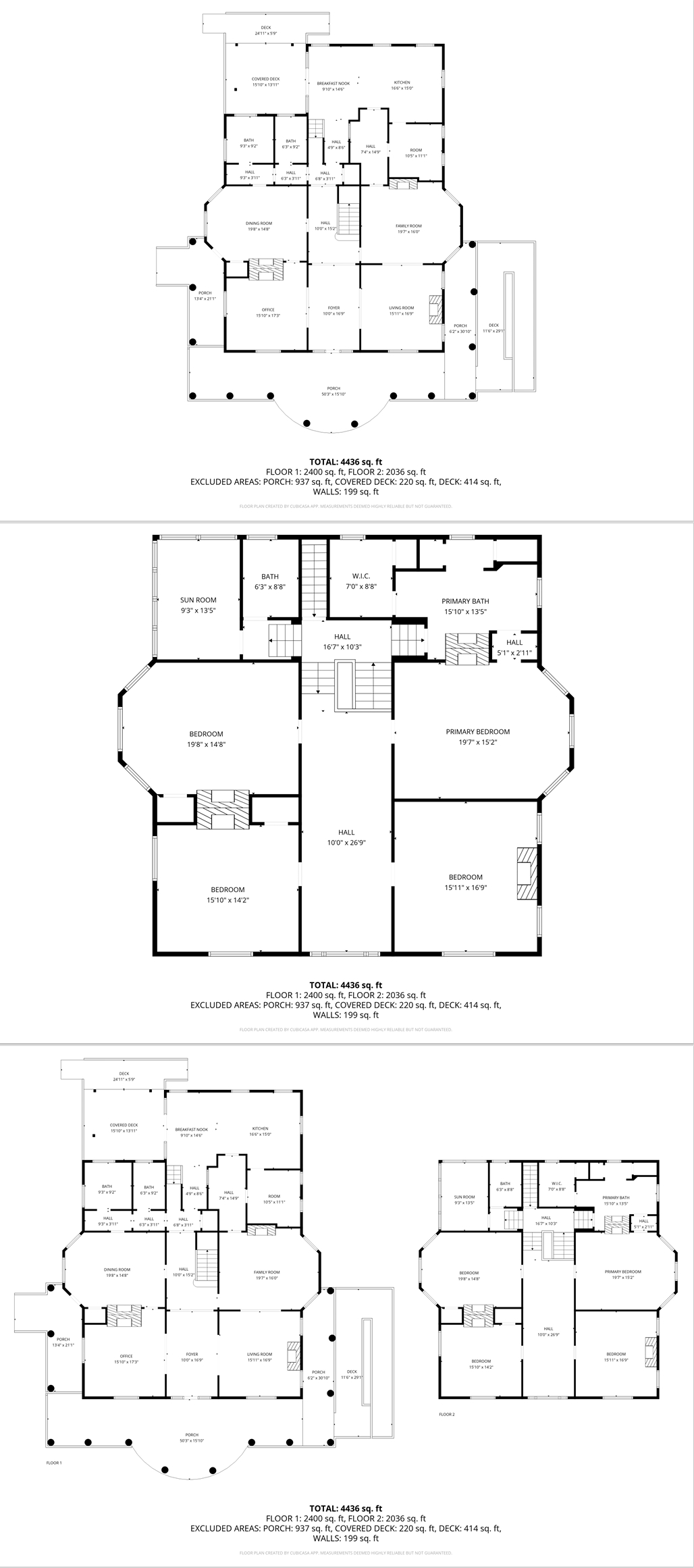
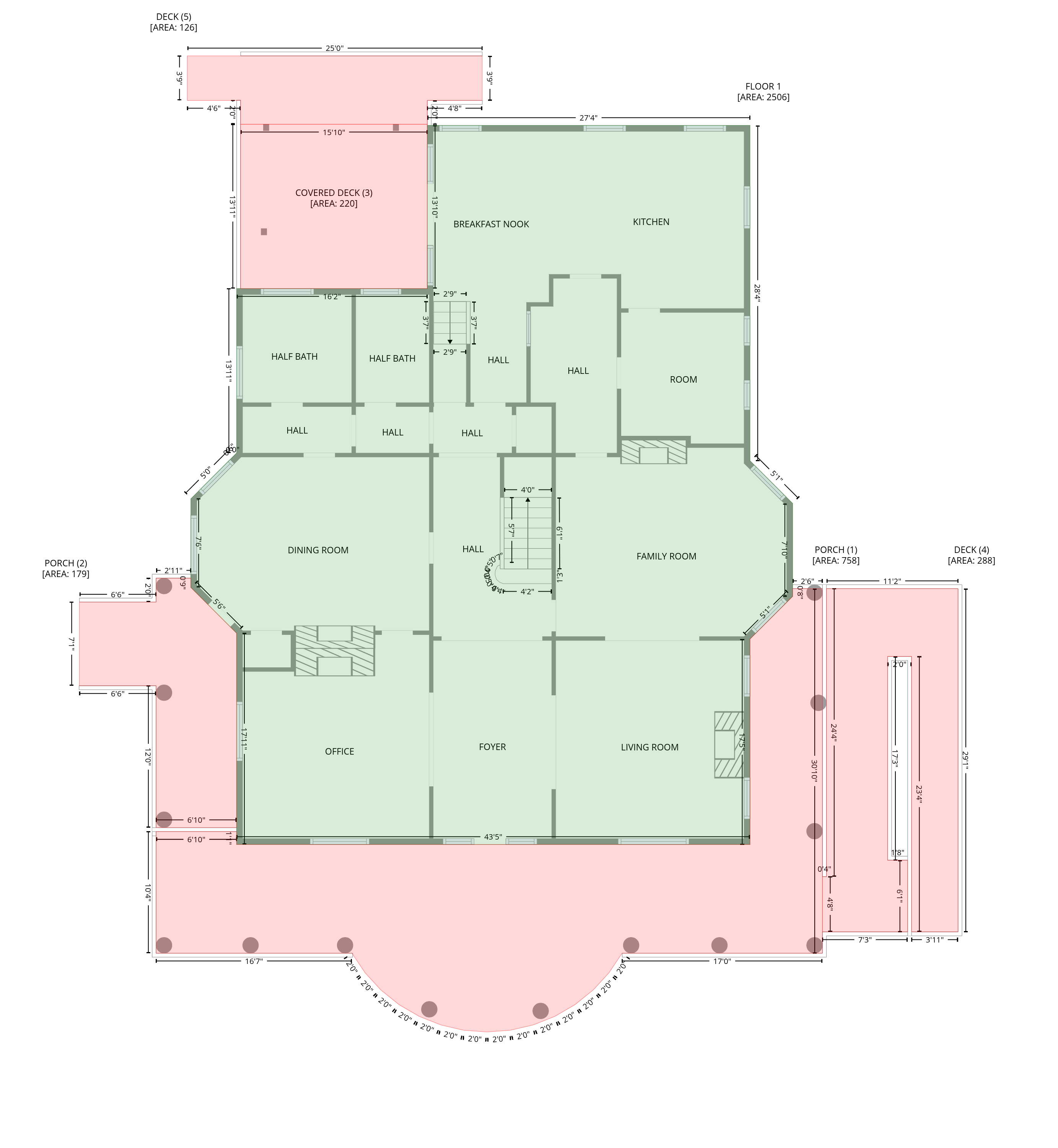
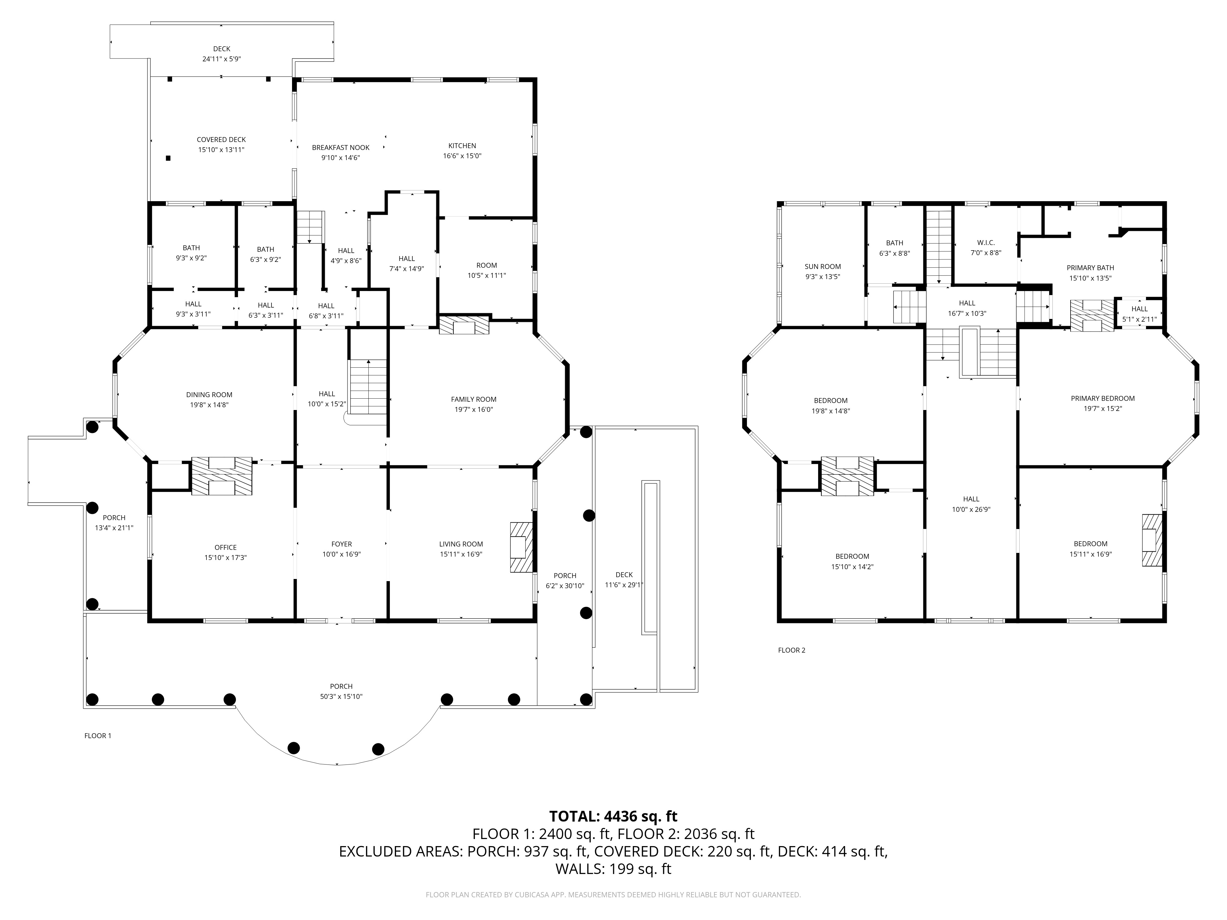
Neoclassical Revival circa 1916 with beautiful updates in kitchen and master bathroom that blend perfectly. Original woodwork throughout. 1.13 acres and a pool, detached garage round out the offerings for a self-contained haven. An architectural masterpiece of yesteryear perfectly functional for today.
Listing provided by HomeLister, Inc

Check your Connection

Looks like your wifi is down or you’re not within range. Please refresh and we’ll try to save your lastest input.